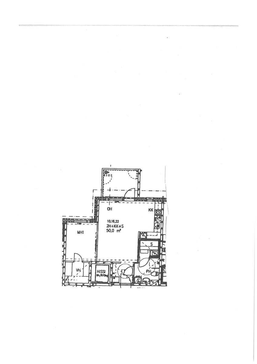
Kerrostalo 2h+k+p+s

Laitolahdenkatu 4, Vihola, Nokia

Hinta
124 500 €

Koko
50.0 m²

Vuosi
2008

Vehreässä Viholassa As Oy Nokian Edenin Pursimiehen neljännenkerroksen kaksio. Siistikuntoinen kaupanteon jälkeen heti vapaana käyttöön oleva asunto, josta turhia neliöitä ei löydy. Lisätilaa antaa tilava lasitettu parveke ja viihtyisyyttä tuo oma sauna, kylpyhuone on laatoitettu ja vaatehuoneeseen saa piiloon turhat tavarat. Tämä siis neliöitään isompi asunto!
Taloyhtiö rakennettu omalle tontille 2008 lähelle Edeniä ja Viholan venesatamaa. Alueella hyvät mahdollisuudet lenkkeilyyn Pyhäjärven rantamaisemissa ja kalaankin pääset miltei kotiovelta!
Huoletonta asumista Viholassa!

Yhteystiedot
  • Kimmo Olli
  • Hämeen Asuntovälitys Oy Lkv
  • kimmo@uuteenkotiin.fi
  • 0400 806655
Kimmo Olli

Kohdenumero20716692
Sijainti
  • Vihola
  • Laitolahdenkatu 4
  • 37120
  • Nokia
TyyppiKerrostalo
HallintamuotoAsunto-osakeyhtiö
OmistusmuotoOma
Huoneistoselitelmä2h+k+p+s
Asuinpinta-ala m²50 m²
Yhteensä m²50 m²
Pinta-alan perusteYhtiöjärjestyksen mukainen, isännöitsijäntodistuksen mukainen
Kerros4
Kerroksia5
Rakennusvuosi (päättynyt)2008
Käyttöönottovuosi2008
VapautuminenHeti

Velaton hinta124 500 €
Myyntihinta124 500 €
Yhtiövastike230,00 €
Hoitovastike230,00 €
Vesimaksu
  • 20
  • oma mittari
Autopaikkamaksu14 € / kk

Sauna
  • oma sauna
ParvekeAsunnossa on parveke
Parvekkeen kuvaus
  • Parveketyyppi: lasitettu
HissiTaloyhtiössä on hissi
Asuntoon kuuluu
  • kaapeli-tv
YleiskuntoHyvä
EnergialuokkaD2018
Lämmitysjärjestelmän kuvausKauko

Asunnon tilat ja materiaalit
  • Pääasiallinen rakennusmateriaali: elementti, betoni
Katto
  • Pulpetti
  • Huopa
Keittiön kuvaus
  • Lisäkuvia huoneista tulossa lähiaikoina
  • Lattiamateriaalit: parketti
  • Seinämateriaalit: maalattu
  • Työtaso: laminaatti
  • Varusteet: liesituuletin, astianpesukone
  • Liesi: sähköliesi
  • Jääkaappi ja pakastin: jääkaappi/pakastin
Kylpyhuoneen kuvaus
  • Lattiamateriaalit: laatta
  • Seinämateriaalit: kaakeli
  • Varusteet: pesukoneliitäntä, lattialämmitys, wc-istuin, suihku, peili
Saunan kuvaus
  • Sisäkuvia tulossa lähiaikoina
  • Lattiamateriaalit: laatta
  • Seinämateriaalit: puu
Olohuoneen kuvaus
  • sisäkuvia tulossa lähiaikoina
  • Lattiamateriaalit: parketti
Makuuhuoneiden kuvaus
  • Lukumäärä: 1
  • Lattiamateriaalit: muovi

Taloyhtiön nimiAsunto Oy Nokian Edenin Pursimies
Isännöitsijän yhteystiedotRetta Isännöinti puh. 010 228 4300
Taloyhtiöön kuuluu
  • urheiluvälinevarasto
EnergialuokkaD2018
Autokatospaikkoja12
(Taloyhtiön) Rakennukseen tehdyt korjaukset ja remontit2009 ovipuhelimien asennus, 2013 valokuidulla toteutettu kiinteistöliittymä, 2016 IV-kanaviston puhdistus, ilmamäärien mittaus ja sääätö, 2017 hissin korjauksia, hätäajokortin ja jarrujen uusinta, 2018 ulkovälinevaraston ja autokatoksen huoltomaalaukset, 2018 vesikaton kuntotarkastus, 2021 parvekelasien huolto, autokatoksen lintupiikit, 2024 ikkunoiden huoltokorjaukset, 2024 ilmanvaihtojärjestelmän nuohous ja säätö, 2025 hissien kannatinhihnojen vaihto, 2025 palovaroittimien asennus, 2025 sähköautojen latausinfran kartoitus, 2025 poistoilmapuhaltimen moottorivaihto
Tontin pinta-ala3342 m²
Tontin omistusOma