Rivitalo 3h+k+s

Vaaraniementie 10, Hasselbacka, Nokia

Hinta
179 000 €

Koko
78.5 m²

Vuosi
1983

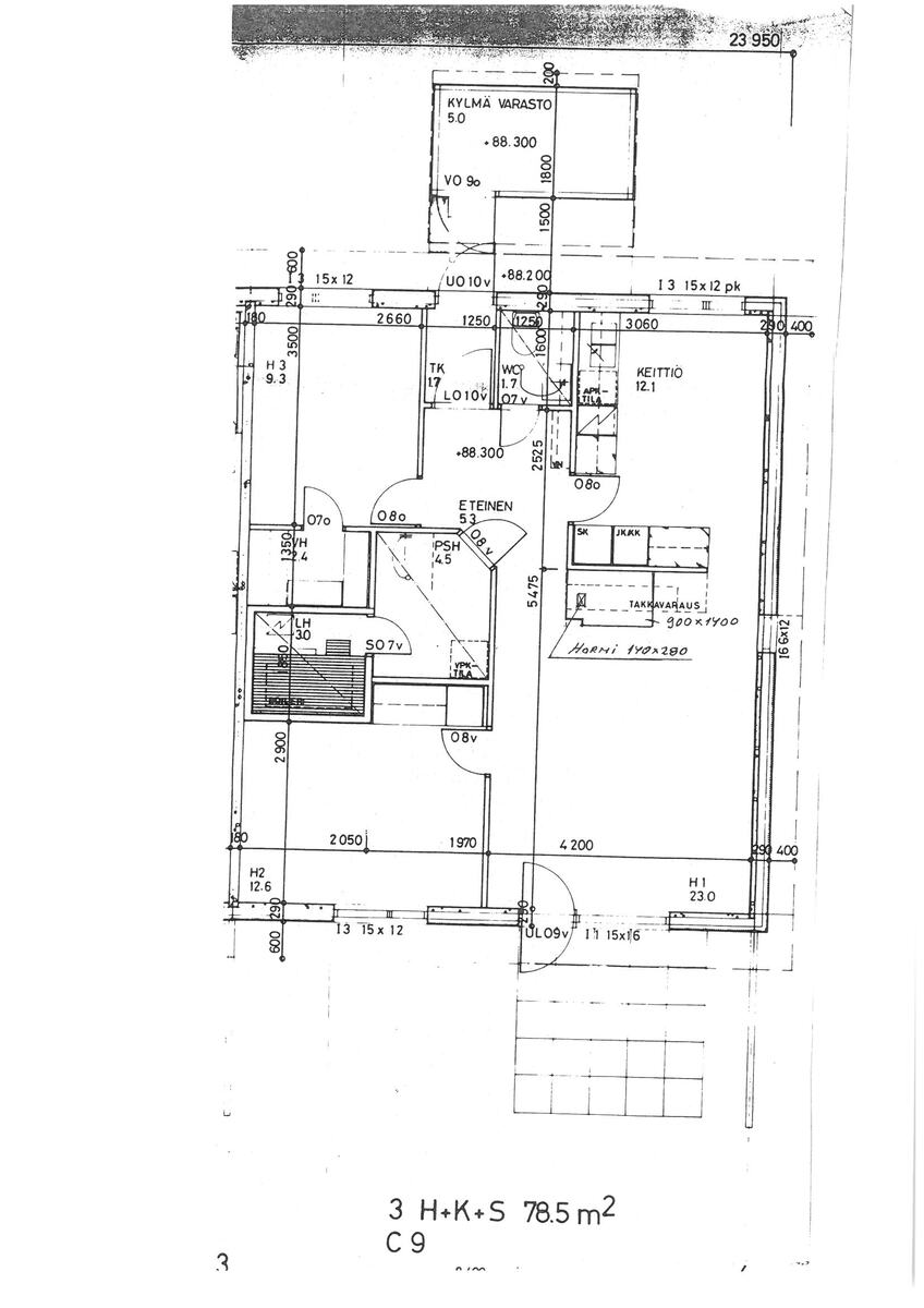
Nyt myynnissä Hasselbackan Helmi! As Oy Hasselbackan Puisto on rakennettu 1983 hienoihin Pyhäjärven rantamaisemiin. Huoneistosta löytyy kaksi makuuhuonetta, olohuone (oh:ssa takka), keittiö, pesuhuone, sauna ja erillinen wc. Neliöitä on 78,5.
Huoneiston edessä on iso ulkovarasto. Autolle löytyy paikka katoksesta. Mikä parasta tässä päätyhuoneistossa, suojaisa olopiha rajoittuu puistoon ja siitä on vain noin 60m Pyhäjärven rantaan. Rannasta löytyy laituri josta helppo pulahtaa vilvoittelemaan virkistävään veteen. Veneellekin mahdollista saada paikka. Rannasta lähtee hienot lenkkipolut ja jos vaikka kalastusta harrastaa niin täällä sitä on helppo tehdä kesät talvet.
Tässä paikka missä varmasti viihtyy, etkä tarvitse kesämökkiä!

Yhteystiedot
  • Kimmo Olli
  • Hämeen Asuntovälitys Oy Lkv
  • kimmo@uuteenkotiin.fi
  • 0400 806655
Kimmo Olli

Kohdenumero20097306
Sijainti
  • Hasselbacka
  • Vaaraniementie 10
  • 37120
  • Nokia
TyyppiRivitalo
HallintamuotoAsunto-osakeyhtiö
OmistusmuotoOma
Huoneistoselitelmä3h+k+s
Asuinpinta-ala m²78.5 m²
Yhteensä m²78.5 m²
Pinta-alan perusteYhtiöjärjestyksen mukainen
Kerros1
Kerroksia1
Rakennusvuosi (päättynyt)1983
Käyttöönottovuosi1983
VapautuminenSopimuksen mukaan

Velaton hinta179 000 €
Myyntihinta179 000 €
Yhtiövastike231,58 €
Hoitovastike231,58 €
Vesimaksu
  • 20
  • oma mittari
Autopaikkamaksu6 € / kk
Lisätietoja maksuistaSähköennakko 75€/kk Kulutetusta vedestä ja sähköstä maksetaan ennakkoa kuukausittain ja tasataan kerran vuodessa. Ennakkomaksun suuruus on ollut itse päätettävissä.

Sauna
  • oma sauna
Tulisija
  • takka
Tilojen kuvausEteisessä lattialämmitys
Asuntoon kuuluu
  • kaapeli-tv
YleiskuntoHyvä
Lämmitysjärjestelmän kuvausPuu, sähkö

Asunnon tilat ja materiaalit
  • Pääasiallinen rakennusmateriaali: tiili, elementti
Katto
  • harja
  • pelti
Keittiön kuvaus
  • Lattiamateriaalit: korkki
  • Seinämateriaalit: maalattu
  • Työtaso: laminaatti
  • Varusteet: liesituuletin, astianpesukone
  • Liesi: keraaminen liesi
  • Jääkaappi ja pakastin: jääkaappi, pakastin
Kylpyhuoneen kuvaus
  • Lattiamateriaalit: laatta
  • Seinämateriaalit: kaakeli
  • Varusteet: suihkuseinä, pesukoneliitäntä, lattialämmitys, peili
WC-tilojen kuvaus
  • Lattiamateriaalit: lauta
  • Seinämateriaalit: kaakeli
  • Varusteet: lattialämmitys, peilikaappi
Saunan kuvaus
  • Lattiamateriaalit: laatta
  • Seinämateriaalit: puu
Olohuoneen kuvaus
  • Lattiamateriaalit: parketti
  • Seinämateriaalit: tapetti
Makuuhuoneiden kuvaus
  • Lukumäärä: 2
  • Lattiamateriaalit: parketti
  • Seinämateriaalit: tapetti

Taloyhtiön nimiAsunto Oy Hasselbackan Puisto
Isännöitsijän yhteystiedotIsännöintitoimisto Rautiainen Oy 03 3416 190
(Taloyhtiön) Rakennukseen tehdyt korjaukset ja remontit2009 yläpohjan lisälämmöneristys 2012 ulko-ovet uusittu 2014 A- ja B-talojen kattovesien ohjaus 2016 ikkunat uusittu 2017 autopaikkojen sähköistykset uusittu 2018 ulkovalot uusittu 2019 autokatosten/ulkovarastojen kunnostus ja maalaus 2023 vesikattoremontti 2023 katon räystäslautojen huoltomaalaus 2023 huippuimurit uusittu jokaiseen kaikkiin huoneistoihin 2024 asunto D 12 yläpohjan höyrysulun korjaus ja eristystyö 2024 viemärin tuuletusputkien (9kpl) eristäminen yläosan puuttuvilta osilta. Yhden harkkopiipun tavallisen kivivillan vaihto nykymääräysten mukaiseen palovillaan. Yhden kevythormin muutos nykymääräysten mukaiseksi.
Tontin pinta-ala6899 m²
Tontin omistusOma